遗珠拾粹,古韵筑章 | 邂逅古建记忆(四)·新绛天主教堂

2023-09-29 22:45:23

· 卷首语 ·


绛州古城

坐落在山西新绛县中部

北靠九原,南襟峨眉,汾浍横贯,鼓水北来


古城内承载着丰富的历史文化积淀

在这19平方公里的古城区内

各级文物保护单位就有33处


这一次

我们深入调研了十四处古建筑

并深入历史文化名村光村

将延续了千年的古建故事续写下去


新绛

天主

教堂



新绛天主教堂是天主教新绛(运城)教区的主教座堂,位于新绛县城北街顶端的高崖上。新绛是山西省最早传入天主教的地方,1620 年即明朝万历年间,意大利神甫艾儒略来到绛州,建立山西省第一座天主教堂。它是中国最早由教徒自发筹建的天主教堂,400年间见证了中西方文化的碰撞和交流。现存建筑1938 年重修,为山西省重点文物保护单位。

新绛大教堂“气势磅礴,独具魅力,位于城市的最高点”。两个哥特式尖塔的大教堂巨大的“门面”是在向人们声明,历史性城市的天际线具有外国宗教身份,并且和龙兴寺的宝塔形成了视觉冲突。毫无疑问,许多人认为它是城市和谐的象征和良好风水的脉络。1900 年之后,作为空间策略的一部分,西式教堂经常建造在开阔显眼的地方。

我们还能看到,在目前新绛县的一些城市绘图形象里也能够看到新绛天主教堂的影子。这是孔昭明先生的愿望,他受罗马教廷委托,跟随 17 世纪耶稣会士的脚步,在山西南部建立一个新的教区。与此同时,孔昭明先生的大教堂成功地利用现有的建筑技术,为中国会众创造了一个现代化的礼拜空间。

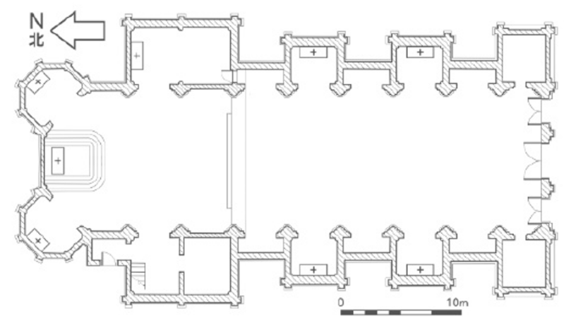
从建筑的角度来看,新绛大教堂最有趣的两个特点是它巨大的拱形中殿和与中殿高度相当的侧面的小教堂和辐射状的小教堂的体量,这两个特点和建筑结构都是相关的。中殿主要屋顶结构由 8 个桁架组成,桁架没有系梁,因为它们的下部包括中殿的横向拱门。根据中国常见的一种技术,这些拱门不是砖砌的,而是用板条和石膏做的。桁架之间的空间中,中殿的拱顶比横向拱门高约 1 米,悬挂在檩条上,檩条拥有大的圆形截面。这意味着拱顶很轻,但屋顶框架很坚固,能够承受中式瓦屋顶的沉重负荷。

混合屋顶是由承载着美丽的中国传统屋顶的西式桁架组成的。屋顶坡度较低,桁架跨度较宽。简而言之,在这种重量下,桁架对侧壁的压力较大,因为没有系梁,所以需要支墩。然而,建筑师没有采用传统的支墩,而是设计了横向墙壁作为支撑系统的侧面小教堂。这个解决方案很巧妙,而且更加有效,因为侧面小教堂的墙壁上升到与中殿和后殿墙壁相同的高度。






责任编辑:过欣怡

我要评论 (网友评论仅供其表达个人看法,并不表明本站同意其观点或证实其描述)

全部评论 ( 条)

    新绛天主教堂是天主教新绛(运城)教区的主教座堂,“气势磅礴,独具魅力,位于城市的最高点”。